Продажа 1-комнатной квартиры
Костромская область, Кострома, улица Мира, 19А
- 32 м²
 - Площадь
 
- 14 м²
 - Жилая площадь
 
- 9.3 м²
 - Площадь кухни
 
- 5/9
 - Этаж
 
3 626 000 ₽
113 313 ₽ за м²
ID объявления 12104442
Поделиться
Добавить в избранное
            КВАРТИРА ЗА 14 ТЫСЯЧ В МЕСЯЦ В ДАВЫДОВСКОМ С АОГВ!!!
-В качестве первоначального взноса можно использовать материнский капитал!
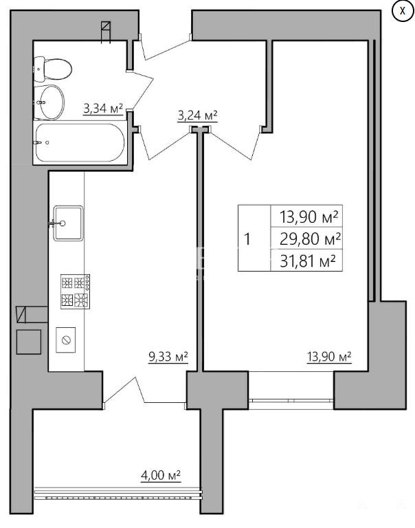
Общая площадь квартиры 32 кв.м.:
-кухня - 9, 3 кв.м.
-комната - 14 кв.м.
-санузел - 3, 34 кв.м.
-прихожая - 3, 24 кв.м.
-застекленная лоджия с панорамным остеклением от застройщика - 4 кв.м.
Газовый котёл - наличие горячей воды круглый год и очень приятные счета за коммунальные услуги!
Просторные, современные подъезды, дизайнерская отделка входных групп.
Новая, современная детская площадка.
Всегда достаточно мест для парковки.
Просторная придомовая территория с видеонаблюдением.
Уютная, уединенная территория, собственная прогулочная зона, зона для  занятий спортом.
В шаговой доступности находятся школа, детский сад, торговые центры, магазины аптеки.
Пешая доступность от остановок общественного транспорта позволяет без проблем добраться в любую часть города.
 
id:59285. - Безопасность
- Лучшие юристы окажут полное сопровождение на всех этапах купли/продажи
- Качество и Профессионализм. Наши специалисты признаны лучшими по уровню сервиса порталов.
- Надежность и экономия. Мы являемся ключевыми партнерами всех ведущих банков. Личный ипотечный брокер выберет для Вас оптимальную программу ипотеки. 
- Прозрачность. Фиксированное агентское вознаграждение. Оплата только после совершения сделки.
- Комфорт. Весь комплекс услуг купли/продажи. Формат "одного окна" в одном офисе в центре города
- Уверенность. Мы входим в  ТОП- 25 ведущих агентств недвижимости РФ по версии рекламных площадок.
Сделка с недвижимостью - работа профессионалов. 
Вместе создаем наследие.            
Дата обновления: 29 октября 2025