Продажа дома

Костромская область, Шунга, Полевая

159 м²
Площадь
2
Этажность
9 сот
Площадь участка

8 750 000 ₽

55 032 ₽ за м²

ID объявления 12223119

Поделиться

Добавить в избранное

2-х этажный дом в c. Шунга, ПОДХОДИТ ПОД СЕЛЬСКУЮ И СЕМЕЙНУЮ ИПОТЕКУ 6%!!!
- 9 соток, с. Шунга, ул. Пoлeвая, подъезд на авто круглый год до участка;
- газ, электричество на границе участка;
- участок в собственности;
- Школa, детский сад, ФАП, мaгазин, aптека, рeгулярное aвтoбуcнoe coобщение, 10 км - 10 минут дo центра г. Костромы;
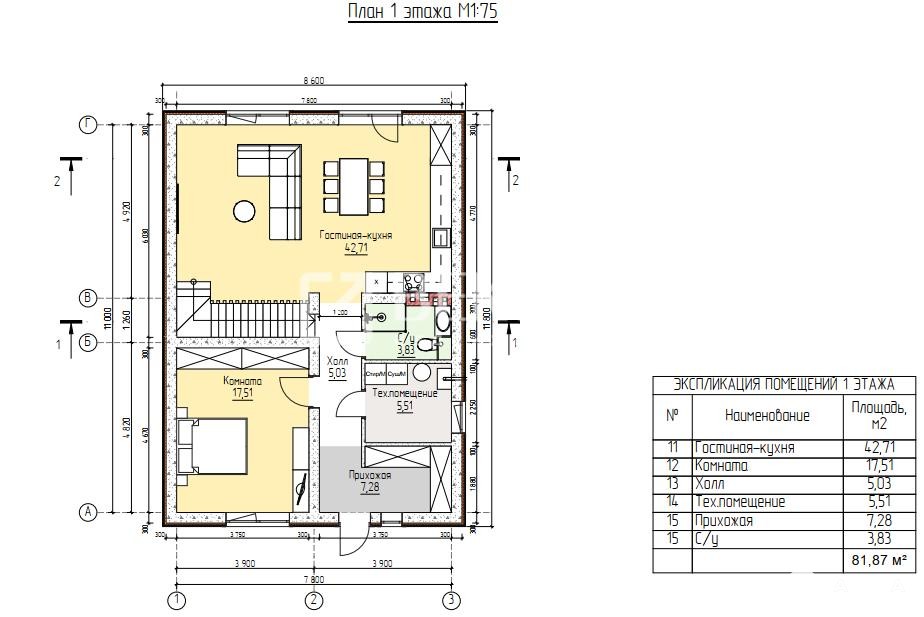
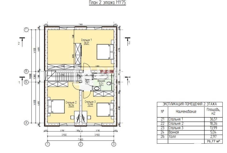
Технические характеристики дома:
- 2-х этажный дом, 158, 7 м2;
- Фундамент свайно-ростверковый;
- Перекрытие фундамента – армированная стяжка;
- Перекрытие первого этажа – ж/б плиты-перекрытия;
- Внешние несущие стены – газобетон 300 мм, утеплитель 50 мм;
- Вент. зазор имитация бруса 20 мм;
- Внутренние несущие стены  - газобетонный блок 300 мм;
- Перегородки – газобетонный блок 100 мм;
- Крыша деревянной конструкции, утепление 200 мм;
- Покрытие кровли – металлочерепица;
- Наружная отделка стен – фасадная штукатурка;
Прекрасный вариант для воплощения мечты о собственном доме!!!
id:65419. - Безопасность
- Лучшие юристы окажут полное сопровождение на всех этапах купли/продажи
- Качество и Профессионализм. Наши специалисты признаны лучшими по уровню сервиса порталов.
- Надежность и экономия. Мы являемся ключевыми партнерами всех ведущих банков. Личный ипотечный брокер выберет для Вас оптимальную программу ипотеки.
- Прозрачность. Фиксированное агентское вознаграждение. Оплата только после совершения сделки.
- Комфорт. Весь комплекс услуг купли/продажи. Формат "одного окна" в одном офисе в центре города
- Уверенность. Мы входим в ТОП- 25 ведущих агентств недвижимости РФ по версии рекламных площадок.

Сделка с недвижимостью - работа профессионалов.

Вместе создаем наследие.

Дата обновления: 14 ноября 2025