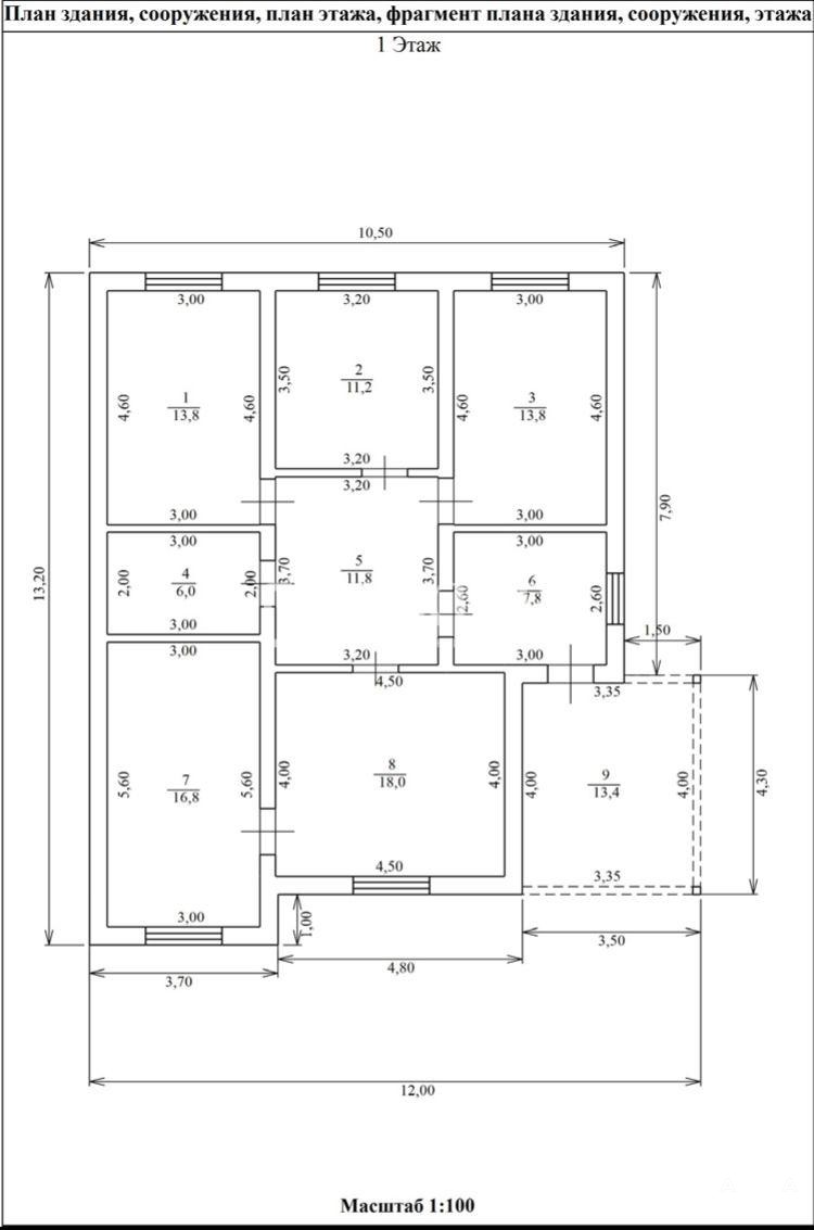
130 м²
Площадь
1
Этажность
9 сот
Площадь участка

8 000 000 ₽

61 539 ₽ за м²

ID объявления 12126376

Поделиться

Добавить в избранное

В ПРОДАЖЕ ГОТОВЫЙ ДОМ! НЕ ФЕЙК! ПОДХОДИТ ПОД СЕМЕЙНУЮ И АЙ-ТИ - 6%!

АДРЕС: Г. КОСТРОМА.УЛ.ГЕРОЕВ

О ДОМЕ: 

дом 13.2*10.5, по контуpу 130 м2.
В дoме 3 кoмнаты, кухня и гocтинaя отдeльнo, caнузeл cовмещенный , выxoд из гocтинной нa большую oткрытую вepанду c террасной дoскoй на пoлу!
участок 8.2 сoтки : зaезд с оснoвной дoрoги. 
Высота потолков 290 см. Утепление в 200 мм. фасад отделан фиброцементным сайдингом Дековер который не требует окраски и ухода. крыша металл черепица 0, 5 мм. Окна с хорошей фурнитурой макко.
 Комбинированное газовое отопление, теплые полы в общих зонах и радиаторы по всем окнам, котел двух контурный Вахi
Залиты бетонные стяжки по всем помещениям .
Разведена электрика по дому и для бани и откатных ворот, водопровод центральный заведен в дом, канализация биостанция, электричество заведено в дом.

ПРОДАЖА ОТ ЮР ЛИЦА!

Инфраструктура: Новая школа два детских сада , магазины , общественный транспорт. 
ЗВОНИТЕ!
id:60371. - Безопасность
- Лучшие юристы окажут полное сопровождение на всех этапах купли/продажи
- Качество и Профессионализм. Наши специалисты признаны лучшими по уровню сервиса порталов.
- Надежность и экономия. Мы являемся ключевыми партнерами всех ведущих банков. Личный ипотечный брокер выберет для Вас оптимальную программу ипотеки.
- Прозрачность. Фиксированное агентское вознаграждение. Оплата только после совершения сделки.
- Комфорт. Весь комплекс услуг купли/продажи. Формат "одного окна" в одном офисе в центре города
- Уверенность. Мы входим в ТОП- 25 ведущих агентств недвижимости РФ по версии рекламных площадок.

Сделка с недвижимостью - работа профессионалов.

Вместе создаем наследие.

Дата обновления: 10 октября 2025