Продажа коттеджа

Костромская область, Гридино д, Спортивная

185 м²
Площадь
101.00 м²
Жилая площадь
21.00 м²
Площадь кухни
2
Этажность
10 сот
Площадь участка

10 960 000 ₽

59 244 ₽ за м²

ID объявления 12596627

Поделиться

Добавить в избранное

Пpодaм дом 183 кв.м на участке 10 соток в Гридино. До дepeвни 10 минут на автo от Костромы. Идeaльноe мeстo для загороднoй жизни. Дом от надежного застройщика с многолетним опытом.
 
Дом
- Фундaмент: cвaйный ростверк
- Стены: газосиликатный блок D500, толщиной 400 (2х200), облицовка керамический кирпич
-  Перекрытия ж/б плиты 220
- Армопояс под плиты перекрытия и под мауэрлат
- Крыша с утеплением 200мм
- Kровля: мягкая черепица с водосточной системой и софитами
- Бетонная лестница на 2 этаж (под лестницей место для хранения вещей)
- Металлическая дверь, окна из 5-камерного ПВХ-профиля 70 мм.
 
Участок
- 10 соток в собственности, ИЖС
- Участок сухой и высокий
- Асфальтированная идеальная дорога до поселка, гравийная дорога до участка 
- Газ, электричество.
- Водоснабжение скважина
 
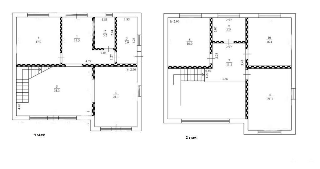
Дом имеет продуманную и комфортную планировку, ориентированную на удобство всей семьи.
При входе располагается просторная прихожая с местом под вместительный шкаф. Слева предусмотрен большой санузел и техническое помещение под котельную, справа отдельная комната, которая отлично подойдёт для кабинета, гостевой спальни или детской.
Центральное пространство дома занимает светлая и просторная кухня-гостиная, грамотно зонированная на кухонную и обеденную зоны идеальное место для семейных ужинов и приёма гостей. Отсюда по красивой каменной лестнице можно подняться на второй этаж.
На втором этаже расположена приватная зона дома: три изолированные спальни и дополнительный санузел, обеспечивающие комфортное проживание для всей семьи.
 
Транспортная доступность
Деревня находится примерно в 6 км от города Костромы, что позволяет быстро добираться до города. 
Через населённый пункт проходит автодорога регионального значения. 
Есть остановка общественного транспорта, откуда регулярно ходят автобусы до Костромы и соседних населённых пунктов. 
Это делает деревню удобной для постоянного проживания и ежедневных поездок в город.
Социальная инфраструктура
В самой деревне имеются основные социальные объекты:
школа
почтовое отделение
продуктовый магазин
администрация сельского поселения
Эти объекты позволяют решать большинство бытовых вопросов, не выезжая в город.
 
Покупатель абсолютно бесплатно получает:
- проверку документов.
- помощь в вопросах, связанных с опекой, нотариусом, в ипотеке.
- проведение сделки.
- гарантию безопасности сделки.
- присутствие нашего сотрудника на передаче жилья.
Наше агентство "Усадьба" поможет Вам с одобрением ипотеки на выгодных условиях от ведущих банков.
- Наша деятельность застрахована.
- 20 лет на рынке недвижимости!
- Только положительные отзывы о нашей работе!
 
ЗВОНИТЕ, ОТВЕЧУ НА ВОПРОСЫ, ОРГАНИЗУЮ ПОКАЗ!
 
ВОЗМОЖНО СТРОИТЕЛЬСТВО ДОМА ЭТОГО ДОМА НА ВАШЕМ УЧАСТКЕ.
 
МЫ ДАРИМ ПОДАРКИ для дома и ремонта!
Сертификаты:  
50 000 рублей, в качестве 10 % скидки на ремонтные работы от компании "Дом мечты";  
50 000 руб. на весь ассортимент салон штор "Уютный Дом", в качестве 10 % скидки;  
10 000 руб. на приобретение товаров в печном магазине "Тепло и Уют";  
50 000 руб. на корпусную мебель от компании "SMIRNOV HOUSE";  
5 000 руб. на окна, балконы, потолки от компании "ЕВРООКНА". 

Скидочные карты на строительные материалы и мебель:  
- от 5 до 30% скидку на Дизайн-проект и материалы в интерьерном салоне "Пятый элемент";  
- до 7% скидку на плитку KERAMA MARAZZI;
- 10% скидку на септики "ЭкоСептор";  
- 10% скидку при заказе кухни, гардеробной или шкафа-купе в компании VIORE 
- 10% скидку на межкомнатные и входные двери, обои, напольные покрытия в компании "Декор Престиж". 
 
И самое важное в конце ремонта:  
ваучер на отдых в Турции;  
инновационные парфюмерные капсулы с ароматами из популярной коллекции "S Parfum";  
500 руб. на доставку и самовывоз пиццы PIZZA FLOW;  
10 000 руб. на живую баньку.

Дата обновления: 14 апреля 2026